Group X

Building design studio 2, 2019 — Architecture and Design Museum, Helsinki

The course focused on designing a new Architecture and Design Museum in Helsinki, examining what defines a museum and its architecture. Students explored how the building could engage its site and communicate design culture.

Introduction

ARK-E2003 Building Design Studio 2
A design course for max. 30 master level students

8.1.-9.4.2019
Tuesdays at 13-17

Responsible teachers
prof. Antti Ahlava antti.ahlava@aalto.fi
main instructor: Alejandro Campos alejandro.camposuribe@aalto.fi

Course instructors:

Pauliina Kujala pauliina.kujala@live.com
Meri Wiikinkoski wiikinkoskim@gmail.com
Ossi Konttinen ossi.konttinen@bm-ark.fi
Selina Anttinen selina.anttinen@aoa.fi
Matias Kotilainen matias.kotilainen@aalto.fi

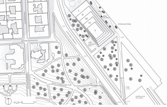
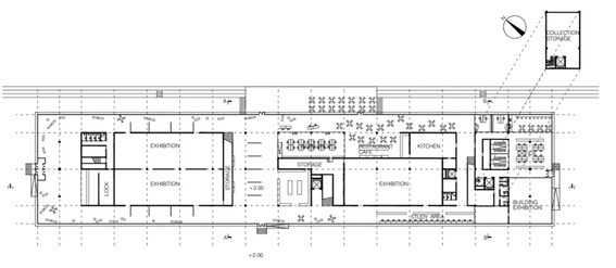
The task is THE NEW ARCHITECTURE AND DESIGN MUSEUM in Helsinki.

What is a museum? What is museum architecture? What is museum architecture for architecture and design? What can be the relationship of a museum and its site?

  • Updated:
  • Published:
Share
URL copied!