Skip to main content
Sign of Change Sign of Change
  • Donate
  • Apply to Aalto
  • Log in
    • Student Guide
    • For personnel
    • Aalto community members please log in to see internal content
    • Apply to Aalto Find a study programme How to apply Scholarships and tuition fees Bachelor's admissions (programmes in Finnish and Swedish) Bachelor’s admissions (programmes in English) Master's admissions Doctoral admissions Campus life Events for applicants Chat with students Subscribe to newsletter Contact admission services Founder School: from students to founders Lifewide Learning Exchange students
    • About our research and art Tenure track career system Doctoral education Research and learning infrastructures Research portal research.aalto.fi Rankings
    • Schools School of Arts, Design and Architecture School of Business School of Chemical Engineering School of Electrical Engineering School of Engineering School of Science
      Departments Accounting & Business Law Applied Physics Architecture Art and Media Bioproducts and Biosystems Built Environment Chemical and Metallurgical Engineering Chemistry and Materials Science Civil Engineering Computer Science Design Economics Electrical Engineering and Automation Electronics and Nanoengineering Film, Television and Scenography Finance Industrial Engineering and Management Information and Communications Engineering Information and Service Management Management Studies Marketing Mathematics and Systems Analysis Energy and Mechanical Engineering Neuroscience and Biomedical Engineering Other units Language Centre Library - Learning Centre
    • Collaborate with us For alumni Corporate collaboration Aalto networking platform Entrepreneurship and innovations Cooperation with HEI and research institutes Collaboration with cities and regions Support us
    • Highlights News Events Aalto University Magazine OurBlogs Podcasts
    • About Aalto University Our strategy Sustainability Code of Conduct Aalto Handbook Campus People and contact information For the media Careers
    • All tools (requires login) All services
      Most used tools Aalto AI Assistant Abacus-accounting Abacus-planning Ada Asio (booking.aalto.fi) Halli Marketing Cloud MOT Kielipalvelu (language service) Neo People hub Phone book PowerBI report finder Salesforce (Service platform) Tiima Webmail Webropol Workday
      Most used services Communications services HR services IT Services Learning services Occupational health Research and innovation services Teacher's Handbook Travel services
      For students Sisu MyCourses MyStudies Browse all courses
      Safety and emergencies Emergencies Safety and security observations Cyber Security Cyber Security incident report
      Other Aalto Space Aalto University Shop Brand library and design system Lunch menus
    • Apply to Aalto
    • Donate
    • Student Guide
    • For personnel
    • Aalto community members please log in to see internal content
    • Log in
  1. Front page
  2. Building design studio 2, 2019 — Architecture and Design Museum, Helsinki

Xin Wang

A waterfront view with buildings, trees, and a large dark-roofed structure reflected in the calm water.
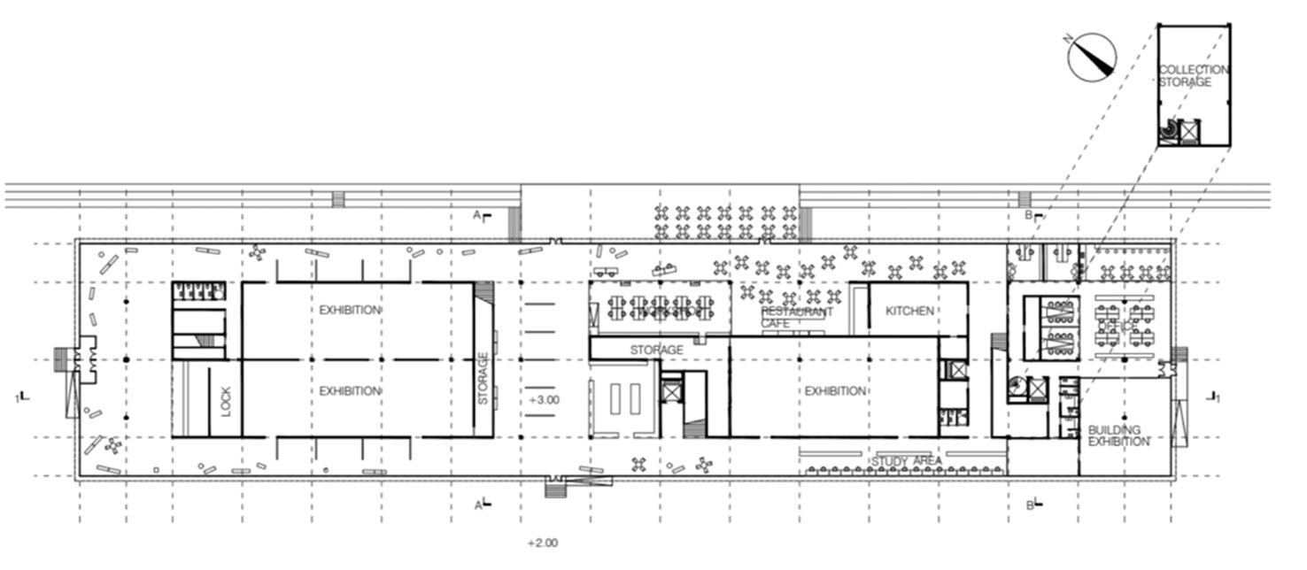
Architectural floor plan showing exhibition areas, storage, kitchen, cafe, study area, and collection storage.
Modern building with a triangular roof, glass walls, and people walking outside. Trees and a bird in the sky.
Aerial view of a waterfront area with a rectangular building, pathways, and scattered trees.
  1. Front page
  2. Group X
  3. Building design studio 2, 2019 — Architecture and Design Museum, Helsinki
  4. Xin Wang
Sign of Change

Aalto University

P.O. Box 11000 (Otakaari 1B)

FI-00076 AALTO

Switchboard: +358 9 47001

Follow us:

  • Facebook
  • LinkedIn
  • Bluesky
  • Instagram
  • Youtube
  • Snapchat
  • Blogs

Quicklinks

  • Research and artistic outputs
  • Library – Learning Centre
  • Admissions
  • Alumni
  • Media
  • IT services
  • Open University
  • Aalto University Shop
  • Site index

Latest

  • News
  • Events
  • Careers

Contact

  • Campus maps
  • Contact information
  • Ethical channel – Whistleblowing

For students

  • Student Guide
  • Webmail
  • MyCourses
  • MyStudies
  • Sisu

Together towards a better world.

Support new ideas, research, work and leadership development towards a stronger Finland.

Donate to Aalto University
  • Privacy notice
  • Cookie policy
  • Feedback
  • Accessibility statement
  • Cookie settings