Housing Design

Time-based Design, City of Turku 2024

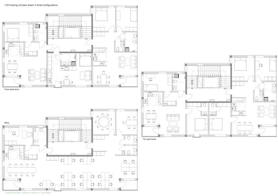
The student's task was to design a residential block in Linnanniemi, Turku. A time-based design approach was used to address two fundamental questions: what kinds of changes should architecture be prepared for—and how? And how can we design a material entity that accommodates change while accounting for Earth’s declining resource base?

The students were tasked with exploring how to apply the principles of adaptability and design for disassembly in their work. The results examine how circular design philosophy and a strong contextual relationship with the surrounding cultural landscape—near the medieval Castle of Turku—affect the cityscape, functionality, and aesthetics of buildings.
Aerial view of Turku Castle surrounded by trees and a port area with ships and parking.

See also

Reuse of materials, City of Helsinki 2023

DESIGN STUDIO. The students examined ways to reuse construction waste in Helsinki, highlighting differences between circular design aesthetics and current practices.

Modern multi-storey building with balconies, surrounded by trees. People and a bicycle outside. A red balloon floats near the trees.

Memory-friendly Living in Kirkkonummi 2022

DESIGN STUDIO. This studio focused on designing a memory-friendly housing neighborhood in Kirkkonummi, near the future community health center.

Bright room with large windows, a grand piano, wooden columns, potted plants, tables, chairs, and red doors.

Housing Design

The Professorship in Housing Design conducts internationally recognized and impactful architectural design and research, applying this knowledge in its teaching. The research and design efforts concentrate on two main areas: housing design quality and circular construction, with a vision for the future of housing, particularly in the Nordic region. Since 2022, the team has been led by Assistant Professor Antti Lehto

Modern row house with wooden cladding, large terraces, and potted plants outside, under a partly cloudy sky.

Student works

Selected works from bachelor's and master's courses.

  • Updated:
  • Published:
Share
URL copied!