Housing Design

In between Scales and Typologies, 2024

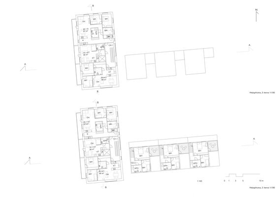
The assignment for the basic course in housing design was to design an apartment building in East Helsinki. The site was located between a 1960s suburb and a detached housing area.
Modern white apartment building with large balconies, surrounded by trees. An elderly person walks with a bicycle.
Picture: Saga Luhtala

See also

Residential Environment, 2025

BASIC COURSE. In spring 2025, the project was set in Myllypuro—a rapidly developing district in eastern Helsinki undergoing significant infill development.

Modern kitchen and dining area with wooden floor, black countertops, green chairs, and large windows.

Urban Infill, 2023

BASIC COURSE. The task was to explore how the connection to the surrounding nature was reflected in the layouts of residential spaces, communal areas, and the outdoor areas, with Herttoniemi's infill development as the design focus.

Modern white apartment building surrounded by autumn trees. A person rides a bike near a smaller white structure.

Housing Design

The Professorship in Housing Design conducts internationally recognized and impactful architectural design and research, applying this knowledge in its teaching. The research and design efforts concentrate on two main areas: housing design quality and circular construction, with a vision for the future of housing, particularly in the Nordic region. Since 2022, the team has been led by Assistant Professor Antti Lehto

Modern row house with wooden cladding, large terraces, and potted plants outside, under a partly cloudy sky.

Student works

Selected works from bachelor's and master's courses.

  • Updated:
  • Published:
Share
URL copied!